РУКОВОДСТВО ПО ЭКСПЛУАТАЦИИ ОТОПИТЕЛЕЙ ПЛАНАР 4ДМ-12, 4ДМ-24
Настоящее «Руководство по эксплуатации» предназначено для изучения устройства, работы, монтажа и правил эксплуатации воздушных отопителей ПЛАНАР-4ДМ-12, ПЛАНАР-4ДМ-24, предназначенных для регулируемого обогрева рабочего места водителя и различных помещений ограниченного объема автотранспортных средств при температурах окружающего воздуха до минус 45 °С.
Воздушные отопители выпускаются с различной комплектацией и условно обозначаются:
- ПЛАНАР-4ДМ-12, ПЛАНАР-4ДМ-24 (комплектуются пластмассовым топливным баком емкостью У=7л);
- ПЛАНАР-4ДМ-12-01, ПЛАНАР-4ДМ-24-01 и ПЛАНАР-4ДМ-24-01КР (комплектуются топливозаборником и тройником для забора топлива из топливной системы автомобиля);
- ПЛАНАР-4 ДМ-24-01КАЗ, ПЛАНАР-4 ДМ-24-01ГАКЗ
и ПЛАНАР-4 ДМ-24-01-1ГАКЗ (комплектуются совмещенным жгутом);
- ПЛАНАР-4 ДМ-24-02 (комплектуется топливным баком емкостью V=14 л). Состав комплектации перечисленных изделий см. в разделе 7 настоящего руководства.
Руководство по эксплуатации может не отражать незначительные конструктивные изменения, внесенные предприятием- изготовителем после подписания к печати данного РЭ.
2 Основные параметры и характеристики автономок ПЛАНАР-4 ДМ-24
Теплопроизводительность: max, квт - 3, min, квт - 1
Напряжение питания - 24 В
Вид топлива - дизельное топливо по ГОСТ 305
Расход топлива: max - 0,37 л/ч, min - 0,12 л/ч
Режим запуска и остановки - ручной
Масса - 10 кг
3 Техника безопасности при эксплуатации автономки
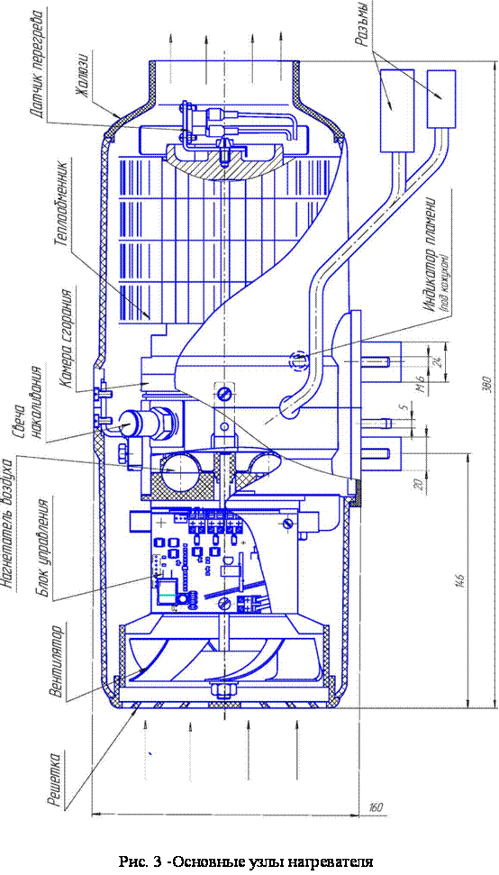
3.1 Монтаж отопителя и его составных частей должен производиться специализированными организациями, в виду сложности изделия содержащего в своем составе: горелку, в которой сгорает топливо, теплообменник, обеспечивающий передачу тепла в результате сгорания топлива, топливный насос, воздушный нагнетатель, блок управления, управляющий работой отопителя по программе, датчик температуры и т.п.
3.2 Отопитель разрешается применять только для целей, указанных в настоящем руководстве по эксплуатации.
3.3 Запрещается прокладывать топливопровод внутри салона, кабины автомобиля или АТС.
3.4 Автомобиль, оборудованный отопителем, должен иметь огнетушитель.
3.5 Отопитель запрещается применять в местах, где могут образовываться и скапливаться легковоспламеняемые пары и газы или большое количество пыли.
3.6 Учитывая опасность отравления выхлопными газами при работающем ото-пителе, нельзя пользоваться отопителем при стоянке автотранспорта в закрытых помещениях (гараже, мастерских и т. п).
При заправке автомобиля топливом отопитель должен быть выключен
3.1 При проведении электросварочных работ на автомобиле или ремонтных работ на отопителе необходимо отключить его от аккумуляторной батареи.
3.2 При монтаже и демонтаже отопителя должны соблюдаться меры безопасности, предусмотренные правилами проведения работ с электрической сетью и топливной системой автомобиля.
3.3 Запрещается подключение отопителя к электрической цепи автомобиля при работающем двигателе и отсутствии аккумуляторной батареи.
3.4 Запрещается отключение эл. питания отопителя до окончания цикла продувки.
3.12 Питание отопителя электроэнергией должно осуществляется от аккумуляторной батареи независимо от массы автомобиля.
3.13 Запрещается подсоединять и отсоединять разъемы отопителя при включенном электропитании отопителя.
3.14 После выключения отопителя повторное включение должно быть не ранее, чем через 5-10 секунд.
3.15 При появлении неисправностей в работе отопителя необходимо обращаться в специализированные ремонтные организации, уполномоченные заводом-изготовителем.
3.16 При несоблюдении вышеперечисленных требований потребитель лишается прав на гарантийное обслуживание отопителя.
4 Описание устройства и работы автономки
Отопитель работает независимо от автомобильного двигателя.
Питание отопителя электроэнергией осуществляется от автотранспортного средства. Схема электрических соединений отопителя приведена на рис. 2.
Питание отопителя топливом может осуществляться из топливного бака автомобиля или из топливного бака входящего в комплектацию отопителя.
Отопитель является автономным нагревательным устройством, которое содержит:
- нагреватель;
- топливный насос для подачи топлива в камеру сгорания;
- устройство пуска и индикации (пульт управления);
- жгуты проводов для соединения элементов отопителя и с аккумуляторной батареей автомобиля.
Принцип действия отопителя основан на разогреве воздуха, принудительно вентилируя его через теплообменную систему отопителя.
В качестве источника тепла используются газы от сгорания топливной смеси в камере сгорания. Полученное тепло нагревает стенки теплообменника, который с внешней стороны обдувается воздухом. Воздух проходя через ребра теплообменника нагревается и поступает в салон автомобиля или помещение АТС.
При включении отопителя осуществляется тестирование и контроль работоспособности элементов отопителя: индикатора пламени; датчика перегрева; электромотора нагнетателя воздуха; свечи; топливного насоса и их электроцепей. При исправном состоянии начинается процесс розжига.
По заданной программе происходит предварительная продувка камеры сгорания и разогрев до необходимой температуры свечи накаливания. Затем, по той же программе начинает подаваться топливо и воздух. В камере сгорания начинается процесс горения. После образования стабильного горения происходит отключение свечи накаливания. Контроль пламени осуществляется индикатором пламени. Всеми процессами при работе отопителя управляет блок управления.
Блок управления осуществляет контроль над температурой теплообменника в нагревателе и при превышении установленного значения температуры прекращает процесс горения.
Кроме того, имеется возможность выключить отопитель в любой момент времени.
При подаче команды на выключение отопителя прекращается подача топлива и производится вентиляция камеры сгорания воздухом.
Особенности автоматического управления работой отопителя в аварийных и нештатных ситуациях:
1) если по каким-либо причинам не произошёл запуск отопителя, то процесс запуска автоматически повторится. После 2-х неудачных попыток происходит выключение отопителя;
2) если во время работы отопителя горение прекратится, то отопитель выключится;
3) при перегреве теплообменника в нагревателе (например, закрыто входное или выходное отверстия в нагревателе) происходит автоматическое выключение ото-пителя;
4) при падении напряжения ниже 20,5 В (10,5 В) или его повышении свыше 30 В (16 В) происходит выключение отопителя. В скобках указаны значения для отопите-ля работающего при номинальном напряжении 12 В.
5) при аварийном выключении отопителя на пульте управления начнет мигать светодиод (красным или оранжевым цветом). Количество миганий через паузу показывает вид неисправности. Расшифровку вида неисправности смотри в разделе 12 «Руководства по эксплуатации».
По желанию потребителя отопитель может комплектоваться выносным датчиком температуры. Датчик температуры устанавливается в кабине в необходимом для водителя месте. С пульта управления можно устанавливать температуру в пределах 15 ¦т 30°С в зоне установки датчика температуры. Необходимую температуру отопи-тель поддерживает в автоматическом режиме и при достижении ее переходит на режим с более низкой теплопроизводительностью. Если первоначально установленная температура окажется ниже, чем окружающая, то отопитель будет работать в режиме вентиляции, а светодиод на пульте управления при этом будет светиться красным цветом. Выносной датчик температуры присоединяется к разъему ХБ7 согласно электрической схеме см. рис.2.
5 Блок управления отопителя (БУ)
БУ обеспечивает управление отопителем совместно с пультом управления. БУ выполняет следующие функции:
а) начальную диагностику (проверку исправности) узлов отопителя при запуске;
6) диагностику узлов отопителя во время всей работы;
в) включение и выключение отопителя по команде с пульта управления;
г) контроль над температурой в кабине при установленном датчике;
д) управление процессом горения;
е) автоматическое включение режима вентиляции после окончания процесса го-
рения;
ж) автоматическое выключение отопителя:
- при потере работоспособности одного из контролируемых узлов;
- при выходе температуры теплообменника, напряжения питания за допустимые пределы;
- при срыве пламени в камере сгорания.
6 Пульт управления и работа с ними.
6.1 Пульт управления (пульт) предназначен для управления работой отопителя. Пульт предназначен для:
а) запуска и остановки отопителя в ручном режиме;
б) изменения в ручном режиме работы отопителя (температуры обогрева);
в) индикации состояния отопителя по светодиоду.

2 На лицевой панели пульта расположены ручка переключателя (поз.1) и свето-диод (поз.2 см. рис 1).
Ручка переключателя предназначена для выполнения следующих команд:
- при установке ручки переключателя в крайнее левое положение (после щелчка) отопитель выключен;
- при повороте по часовой стрелке после щелчка отопитель включится на режим обогрева. В зависимости от положения ручки отопитель будет работать с тепло-производительностью в пределах от 1 до 3 кВт, а при установленном выносном датчике изменяет температуру от 15°С до 30°С.
Светодиод поз.2 показывает состояние отопителя:
- светится красным цветом - режим обогрева или режим вентиляции в начале и в конце работы отопителя;
- мигает красным цветом - при неисправности (аварии). Количество миганий после паузы соответствует коду неисправности (см. таблицу 8);
- не светится - при неработающем отопителе.
6.2 Для управления отопителем можно применить пульт управления ПУ-8М, который поставляется фирмой «Адверс» по дополнительному заказу. ПУ-8М более современный, имеет индикатор и кнопки управления Пульт ПУ-8М предназначен для:
- запуска и остановки отопителя в ручном режиме;
- установки режима работы - по мощности или по температуре;
- индикации (цифровой) установленной температуры или мощности;
- индикации (цифровой) температуры с выбранного датчика;
- индикации (цифровой) кода неисправности при отказах в работе отопителя. Более подробная информация изложена в руководстве по эксплуатации ПУ-8М, которое входит в комплектацию пульта.

8 Требования к монтажу узлов и агрегатов отопителя
8.1 Монтаж нагревателя
Монтаж нагревателя производить с учётом допустимых рабочих положений в соответствии с рис. 10 внутри помещения. На рис.10 показаны два крайних монтажных положения нагревателя. Входное отверстие нагревателя должно располагаться таким образом, чтобы в обычных рабочих условиях не могли подсасываться выхлопные газы двигателя автомобиля и отопителя. Расстояние от стенок, перегородок до торца входного отверстия нагревателя должно быть не менее 50 мм (см. рис.10). При монтаже и эксплуатации нагревателя необходимо предусмотреть защиту от попадания посторонних предметов во входное и выходное отверстия. Монтаж нагревателя проводить с учетом доступности демонтажа нагревателя, что приведет в конечном итоге к быстрому техническому обслуживанию. Для монтажа нагревателя отверстия в корпусе АТС производить согласно рис. 11.

ВНИМАНИЕ !! Надежная работа отопителя зависит от правильного монтажа нагревателя. Нагреватель должен устанавливаться горизонтально, при этом свеча накаливания должна быть в верхнем положении согласно Рис. 10.

8.2 Монтаж воздухозаборника. Воздух, необходимый для горения, не должен всасываться из салона или кабины и багажного отделения автомобиля. Всасывающее отверстие патрубка монтировать в положении, исключающем засорение или попадание туда снега и обеспечивающем свободный сток попавшей в него воды. Входное отверстие воздухозаборника запрещается располагать против набегающего воздушного потока при движении автомобиля.
8.3 Монтаж выхлопной трубы. При монтаже выхлопной трубы необходимо учитывать ее высокую температуру при эксплуатации. Труба выхлопная (гибкий гофрированный металлический шланг) отрезается нужной длины. Выхлопная труба крепится хомутами и монтируется с лёгким наклоном вниз в сторону выхлопа. Для защиты отдельных участков автомобиля (электропроводки и прочих магистралей автомобиля) от воздействия высокой температуры, на выхлопную трубу необходимо установить теплоизоляцию (поз.9 см. рис 4)
На выхлопной трубе необходимо делать продольный пропил (примерно 15 мм) для лучшего уплотнения при подсоединении к патрубку нагревателя, не выходящий за пределы охватываемого патрубка. Торец выхлопной трубы не должен при монтаже касаться резинового уплотнения нагревателя. Отработанные газы должны отводиться наружу. Выход отработанных газов и вход воздуха для сгорания должны быть расположены так, чтобы исключить возможность повторного всасывания отработанных газов.
При монтаже выхлопной трубы исключить проникновение отработанных газов в кабину или всасывание их вентилятором через радиатор отопителя кабины. Кроме того, газы не должны отрицательно влиять на работу агрегатов автомобиля. Выходное отверстие выхлопной трубы должно находится в положении, исключающем засорение или попадание снега и обеспечивающим свободный сток попавшей в него воды. На конце выхлопной трубы установлен экран, который необходим для устойчивой работы отопителя на малых режимах. Если экран не установлен (состояние поставки) то необходимо его установить согласно
(рис. 4). Выходное отверстие выхлопной трубы запрещается располагать против набегающего воздушного потока при движении автомобиля.
8.4 Монтаж топливной системы отопителя.
Во избежание аварийных ситуаций не допускаются отклонения от ниже приведённых указаний.
8.4.1 Монтаж бака и топливного насоса.
Топливный бак должен быть прочно укреплен и установлен таким образом, чтобы обеспечивался вывод топлива на землю, которое может вытечь из бака, его наливной горловины и соединений.
Наливная горловина топливного бака не должна находиться в салоне, в багажнике, в моторном отсеке. Если наливная горловина расположена на боковой стороне транспортного средства, то пробка в закрытом положении не должна выступать за габариты кузова. Топливо, которое может пролиться при наполнении топливного бака, не должно попадать на систему выхлопа и электропроводку. Оно должно отводиться на грунт.
Топливный насос предпочтительно монтировать ближе к топливному баку и ниже нижнего уровня топлива в топливном баке.
С целью исключения утечки топлива из топливного бака (самотеком) при нарушении герметичности топливного насоса, топливный бак предпочтительно располагать так чтобы максимальный уровень топлива был ниже среза топливной трубки нагревателя.
8.4.2 Забор топлива с помощью топливозаборника. Топливозаборник монтируется в топливный бак согласно рис.13 а). Установку специальной шайбы с топливозаборником в отверстие бака производить согласно рис 13 б). При монтаже топливопровода от топливозаборника до нагревателя необходимо руководствоваться рис. 14.
Внимание!!! При изготовлении отверстия в топливном баке необходимо выполнять требования техники безопасности по работе с емкостью, которая заполнялась горючим и взрывоопасным топливом.

1- Топливозаборник
2- Гайка М8 5- Шайба специальная
3- Шайба 8 (увеличенная) 6- Кольцо уплотнительное
4- Шайба 8 (уменьшенная)
Рис. 13 - Монтаж топливозаборника.

1- топливный бак
2- топливозаборник
3- топливопровод с1у =2 мм
4- топливный насос
5- муфта
6- топливопровод с у=5 мм
Рис. 14 - Схема монтажа топливной системы отопителя с помощью топливозаборника
8.4.3 Забор топлива для отопителя с помощью тройника: - допускается забор топлива с помощью тройника производить из магистрали слива топлива от двигателя в бак (обратка). Магистраль слива топлива должна быть без давления и заканчиваться у дна топливного бака. Установку тройника проводить согласно рис. 15;

1- топливный бак автомобиля 4 - топливопровод сСу = 2мм
2- топливопровод слива топлива в бак 5 - тройник
(обратка) с двигателя автомобиля 6 - топливный насос
3- муфта
Рис. 15 - Схема монтажа топливной системы отопителя с помощью тройника.
- забор топлива для отопителя c помощью тройника допускается производить из топливопровода идущего от топливного бака к жидкостному подогревателю типа, 10ТС, 14ТС-10. Топливопровод должно быть с d y =5мм. Установку тройника проводить согласно рис. 16.
4 - топливопровод Су =2 мм
5 - тройник
6 - топливный насос

1- топливный бак жидкостного подогревателя
2 - топливопровод (Су =5 мм ) к жидкостному подогревателю 10ТС или 14ТС
3 - муфта
Рис. 16 - Схема монтажа топливной системы отопителя с помощью тройника.
При монтаже топливопроводов перегибы соединительных муфт не допускаются. При монтажных работах отрезку топливопровода производить только острым ножом согласно рис. 17. На местах среза не допускаются сужение проходного сечения топливопровода, вмятины и заусенцы.

Правильно Неправильно Рис. 17 - Отрезка трубопровода перед установкой.
ВНИМАНИЕ. 1. Топливопровод и топливный насос следует защищать от нагрева, не устанавливать их рядом с выхлопной трубой и на двигатель.
2 Топливопровод, идущий от топливного насоса к нагревателю ото-пителя, желательно прокладывать с сохранением угла подъема.
8.5 Монтаж электрической сети отопителя.
Монтаж жгутов, проводов отопителя производить согласно схеме электрических соединений отопителя (см. рис. 2). При монтаже жгутов исключить возможность их нагрева, деформации и перемещения во время эксплуатации автомобиля. Жгуты крепить пластмассовыми хомутами к элементам автомобиля. Допускается к разъему XP5 (см. рис.2) жгута отопителя присоединять жгут жидкостного подогревателя модели 10ТС или 14ТС для питания электроэнергией. Внимание! Монтаж вести при демонтированном предохранителе
8.6 Монтаж пульта управления.
Пульт управления устанавливается в кабине или салоне автомобиля на панели приборов. Крепление осуществляется двумя винтами или саморезами. Соединение пульта со жгутом производится согласно схеме соединений.
9 Проверка отопителя после монтажа
9.1 При монтаже обеспечить:
- герметичность топливопроводов топливной системы и затяжку хомутов;
- надежность крепления электрических контактов жгутов и приборов отопителя; - ручку на пульте управления установить поворотом против часовой стрелки в
крайнее положение до упора после щелчка.
9.2 Установить предохранитель 25А.
9.3 Заполнить топливную магистраль топливом с помощью подкачивающего
устройства (устройство подкачки топлива УПТ-1 можно заказать на предприятии -
изготовителе).
9.4 Включить отопитель и проверить его работоспособность на минимальном и максимальном режимах.
При включении отопителя светодиод на пульте должен светиться красным (оранжевым) цветом. Процесс запуска начинается с продувки камеры сгорания. После продувки начинается процесс розжига и выход на установленный режим.
9.5 Выключить отопитель. При выключении отопителя прекращается подача топлива и производится вентиляция камеры сгорания и теплообменника, при этом све-тодиод на пульте светится красным (оранжевым) цветом. После окончания вентиляции светодиод прекращает светиться, что означает полное выключение отопителя
9.6 Провести запуск отопителя с работающим двигателем автомобиля и убедиться в работоспособности отопителя.
Внимание! 1 При первом запуске отопителя после монтажа желательно подкачивающим устройством заполнить топливопроводную магистраль топливом до входного штуцера нагревателя. Если подкачивающего устройства нет, то необходимо запуск отопителя произвести несколько раз до заполнения топливной магистрали.
2 При подключении отопителя к источнику питания на пульте имеющего ручку переключателя загорается светодиод на ( 5-10сек).
3 Необходимо помнить, что если отопитель не запустился после включения, то блок управления повторит запуск отопителя в автоматическом режиме. Если отопитель не запустится, после двух попыток на пульте замигает све-тодиод. Количество миганий и виды неисправностей см. в таблице 9.
10. Рекомендации
10.1 Для обеспечения надежной работы отопителя необходимо включать его один раз в месяц на 5-10 минут, в том числе и в теплый период года, если отопитель не эксплуатируется. Данная операция необходима для удаления образующихся вяз ких пленочных отложений на движущих частях топливного насоса. Не выполнение данной операции может привести к отказу работы отопителя.
10.2 Надежная работа отопителя зависит от вида топлива, которое должно применяться в зависимости от температуры окружающей среды. Рекомендуемые виды топлива:
Выше 0 Топливо дизельное Л-0,2-40 или Л-02-62ГОСТ 305-82
От 0 до минус 5
Топливо дизельное З-0,2 минус 45 ГОСТ 305-82
От минус 5 до минус 20
Смесь дизельного топлива З-0,2 минус 45 ГОСТ305-82 (50%) с бензином ГОСТ Р 51105-97 (50%)
Ниже минус 20
Топливо дизельное А-0,4 ГОСТ305-82 или смесь дизельного топлива З-0,2
минус 45 ГОСТ 305-82 (50%) с бензином ГОСТ Р 51105-97 (50%)
10.3 При несвоевременном переходе на зимнее топливо может произойти запарафинивание фильтра топливозаборника в топливном баке (если он имеется) и фильтра в топливном насосе, что приводит к не запуску отопителя или к отключению его во время работы.
Для устранения возникшей неисправности необходимо:
а) проверить топливозаборник на работоспособность следующим образом:
1) заменить топливо в топливном баке на топливо в соответствии температуре окружающей среды согласно таблице 8;
2) вывернуть топливозаборник из топливного бака. Промыть фильтр топ-ливозаборника в бензине и продуть сжатым воздухом;
3) установить топливозаборник и проверить работоспособность отопителя;
б) если работоспособность отопителя не восстановилась, после проверки топли-
возаборника, необходимо проверить фильтр топливного насоса следующим обра-
зом:
1) демонтировать топливный насос с автомобиля. Зафиксировав ключом ( ключ на 17 мм) от поворота за поверхность А, отвернуть штуцер и снять фильтр (см. рис.18, запрещается фиксация топливного насоса за другие поверхности при отворачивании и наворачивании штуцера);
2) промыть фильтр в бензине и продуть сжатым воздухом;
3) установить фильтр в топливный насос, при этом установку штуцера производить на герметик, если в нем нет уплотнительной прокладки;

4) установить топливный насос и провести проверку работоспособности ото-пителя.
10.4 Регулярно контролировать степень зарядки аккумуляторной батареи.
10.5 Рекомендуется включение отопителя производить с замкнутым размыкателем массы, чтобы избежать возникновения ложного кода - «превышено время на вентиляцию» (10 миганий светодиода пульта управления).
10.6 Рекомендуется при длительной стоянке или хранении автомобиля отключать отопитель от источника питания (аккумулятора) во избежание его разрядки (ток потребления отопителя в нерабочем состоянии (30 + 40) мА).
11 Возможные неисправности при запуске отопителя и их устранения
11.1 Неисправности, которые могут быть устранены собственными силами.
Если отопитель после включения не запускается, то необходимо:
1) проверить наличие топлива в баке и в топливопроводе после топливного насоса;
2) проверить предохранитель 25 А;
3) проверить надежность соединений контактов в разъемах и в колодках предохранителя (возможно окисление контактов);
11.2 Все другие возникшие неисправности можно определить по количеству миганий светодиода на пульте управления.
12 Неисправности, их причины и методы устранения
Расшифровка количества миганий при неисправности отопителя (количество миганий светодиода указано перед описанием неисправности).
1
Перегрев теплообменника
Проверить входной и выходной патрубок нагревателя на предмет свободного входа и выхода нагреваемого воздуха. Проверить датчик перегрева на теплообменнике, при необходимости заменить
2
Попытки запуска исчерпаны
Если допустимое количество попыток запуска использовано - проверить количество и подачу топлива. Проверить систему подвода воздуха для сгорания и газоотводящий трубопровод.
3
Прерывание пламени
Проверить количество и подачу топлива. Проверить систему подвода воздуха для сгорания и газоотводящий трубопровод. Если отопитель запускается, то проверить индикатор пламени и при необходимости заменить.
4
Неисправность свечи накаливания
Проверить свечу накаливания, при необходимости заменить.
5
Неисправность индикатора пламени
Проверить цепь индикатора пламени на обрыв при этом сопротивление между выводами должно быть не более 10 Ом.
Если индикатор неисправен, то его необходимо заменить
6
Датчик температуры (на блоке управления)
Заменить блок управления
7
Неисправность топливного насоса
Проверить электропровода топливного насоса на короткое замыкание, при необходимости заменить.
8
Нет связи между пультом управления и блоком управления
Проверить соединительные провода, разъемы.
9
Отключение, повышенное напряжение
Отключение, пониженное напряжение
Проверить батарею, регулятор напряжения и подводящую электропроводку. Напряжение между 1 и 2 контактами разъема ХР13 и между 2 и 4 контактами разъема XP2 должно быть не выше 30 В (16 В).
Проверить батарею, регулятор напряжения и подводящую электропроводку. Напряжение между 1 и 2 контактами разъема ХР13 и между 2 и 4 контактами разъема XP2 должно быть не ниже 20,5 В (10,5 В).
10
Превышено время на вентиляцию
За время продувки недостаточно охлаждён нагреватель. Проверить систему подачи воздуха для сгорания и газоотводящий трубопровод. Проверить индикатор пламени и при необходимости заменить.
11
Неисправность мотора нагнетателя воздуха
Проверить электропроводку мотора нагнетателя воздуха, при необходимости заменить нагнетатель воздуха
12
Перегрев внутри отопи-теля в зоне блока управления (температура выше 55°С)
За время продувки перед запуском в течение 5 минут недостаточно охлаждён блок управления или перегрев блока управления, который произошел во время работы. Необходимо проверить входной и выходной патрубок нагревателя на предмет свободного входа и выхода воздуха и повторить запуск для охлаждения отопителя.
